
——这是深日原创专栏《我的业绩 我的风采》第 54章。跟随我们的脚步,带你踏遍天南海北,共同见证深日在全国各地区的电梯降噪案例成果。
编者按:
我们可以简单的假想一下,几位年薪百万的高层管理者正在公司的会议室里头脑风暴,为公司刚投入的数亿资金决策而凝神静思时;当我们的高级产品设计师在办公室深度思考,捕捉转瞬即逝的灵感火花时;当一场关乎公司未来发展的重要谈判进入关键环节时……每隔3~5分钟,就有一段低沉的“嗡嗡嗡”低频噪声由远而近的轮番轰炸你所在的区域,打断或分散你的专注与创造——而面对电梯噪声持续干扰的你,是否同样也会面临情绪崩溃呢?
在大多数人的意识和认知里,电梯噪声只会在住宅建筑中存在。然而,很多人不知道的是在城市超高层甲级写字楼中,由于电梯布局与办公区存在相邻设计,电梯噪声对周边办公环境也同样存在低频噪声干扰的影响,特别是超高速电梯或者高低分区的办公写字楼电梯应用中,电梯噪声的投诉影响也同样严重。
根据[敏感词]现行《民用隔声设计规范》标准条文,在住宅建筑隔声条款中规定:电梯不得紧邻卧室布置,当受条件限制不得不紧相邻起居室设计时,应采取有效的隔声和减振措施;而在办公建筑类别的设计和隔声条文中,对电梯的布局及噪声防治并未提出针对性的设计要求及降噪措施,只是对不同类别功能办公区域提出了噪声限值 ,见下表。
“令不禁即可为之”,由于办公建筑在设计上对电梯噪声在没有针对性的防治设计和标准要求,而且办公建筑一般令昼间办公,所以室内声环境较住宅要求低,所以大部分办公建筑的电梯都会存在与办公区域相邻布局情况,当项目楼层较高且采用超高速电梯安装时,就会引发电梯噪声投诉影响(特别是会议室或老总办公室与电梯相近时)。
本期业绩案例项目要分享的就是深日在深圳地区实施的一个超高层写字楼电梯降噪改造治理项目。该项目是位于深圳福田区的一个高47层甲级写字楼项目,每个塔楼安装有4台超高速电梯(速度:6m/s),该项目顶层两层办公区小会议室、会客户与电梯机房、电梯井道为共墙相邻结构,电梯高速运行时的机房设备低频振动及导轨振动噪声通过建筑刚性结构传递对办公区域造成了非常大的影响(室内电梯噪声高达48-53分贝)从而导致了租户的强烈投诉。
该项目为高品质甲级写字楼,开发商高度重视电梯噪声防治问题,为解决业主的投诉组织了专门的电梯噪声防治专题讨论,约谈了大量的电梯公司、噪声防治公司进行研究,经过大量的技术考察和比对方案,终选择委托深日环保科技有限公司制定整体改造方案并实施了降噪治理,成功解决由于户型布局所造成电梯噪声影响,降噪效果得到了租户满意认可和高度赞赏。
欲了解详情,请看以下深日公司在深圳地区实施的超高层甲级写字楼电梯降噪治理改造项目案例分享!
■电梯降噪项目概况介绍■
本次业绩案例项目位于深圳福田中心区,是一座集高端商业与科技研发于一体的甲级写字楼,为地区超高层地标性建筑,项目由深圳长城开发科技股份有限公司开发建设,也是深日超高层电梯降噪技术在深圳地区的又一个代表性项目。目前深日电梯降噪技术在深圳已先后为:万科地产、华润地产、华侨城地产、鸿荣源地产、中粮地产、新世界地产、同创地产、中海地产、佳兆业地产、龙光地产、阳光华艺、金地地产、益田地产、南山市政、合正地产、京基地产、仁恒地产、卓越地产、东海地产、深圳城投等多个知名房企开发商提供过电梯噪声防治服务,更期待深日电梯降噪防治技术能得到全国更多城市和区域的客户认可。
根据项目甲方的委托要求,我司针对“项目(一期)AB 座”电梯噪声影响的区域进行了噪声测试及技术勘查,根据电梯噪声源、传递路径、电梯噪声的频率及影响分析制定了针对性的一体化系统综合治理方案,从而彻底解决电梯噪声影响,保证投诉业主办公区域的安静。
经过测试评估,该项目电梯噪声包括振动噪声和空气噪声两个方案的影响,噪声源及传递路径涉及机房、井道、墙体等。而终制定的降噪措施包括有如下内容:措施 1:电梯主机底加装低频减振系统;措施 2:电梯井道振动噪声控制(对 A 塔顶部 15 档/台客梯导轨支架增加隔振治理);措施 3:限速器减振措施;措施 4:控制柜减振措施;措施 5:室内墙体隔声措施;6、电梯机房隔声门改造。
项目电梯实施一体化综合隔声减振治理后,降噪效果非常显著,原住户投诉的会客室、会议室(与电梯机房仅一墙之隔)噪声已由原来的48-53分贝降低至33-34分贝,降噪量高达20分贝,获得了原投诉业主及项目委托方一致好评,项目顺利验收,实现安静交付。
以下是该项目保留的现场珍贵影像,有兴趣的请跟我一起探索一下,回忆该项目当时的电梯噪声防治实况——
■电梯降噪项目现场实况探视■
请大家跟我一起深入探视这个深日深圳地区电梯降噪治理案例的实况——
|
|
|
|
▲这是该项目全景效果图,总建筑面积约45万平方米,包含3座产业研发大楼及配套商业设施,定位为"金融科技商务地标"。在高密度办公楼群中,营造出一处聚集、开放、舒适的城市公共休憩空间。
|
|
|
|
▲这是项目内部,设计引入“活力高街”理念,在传统的塔楼与底层裙房之间设计出一个独特的混合区域。1万㎡中心花园和 500 米环形天空跑道的设置,为办公人员提供了舒适且充满活力的工作环境。
|
|
|
|
▲该项目住宅图,全采光办公空间给予入驻企业零遮挡无界视野,每个单元采用4.5米通高的超白Low-E玻璃,可以有效促进企业与企业、人与人之间的交流。
|
|
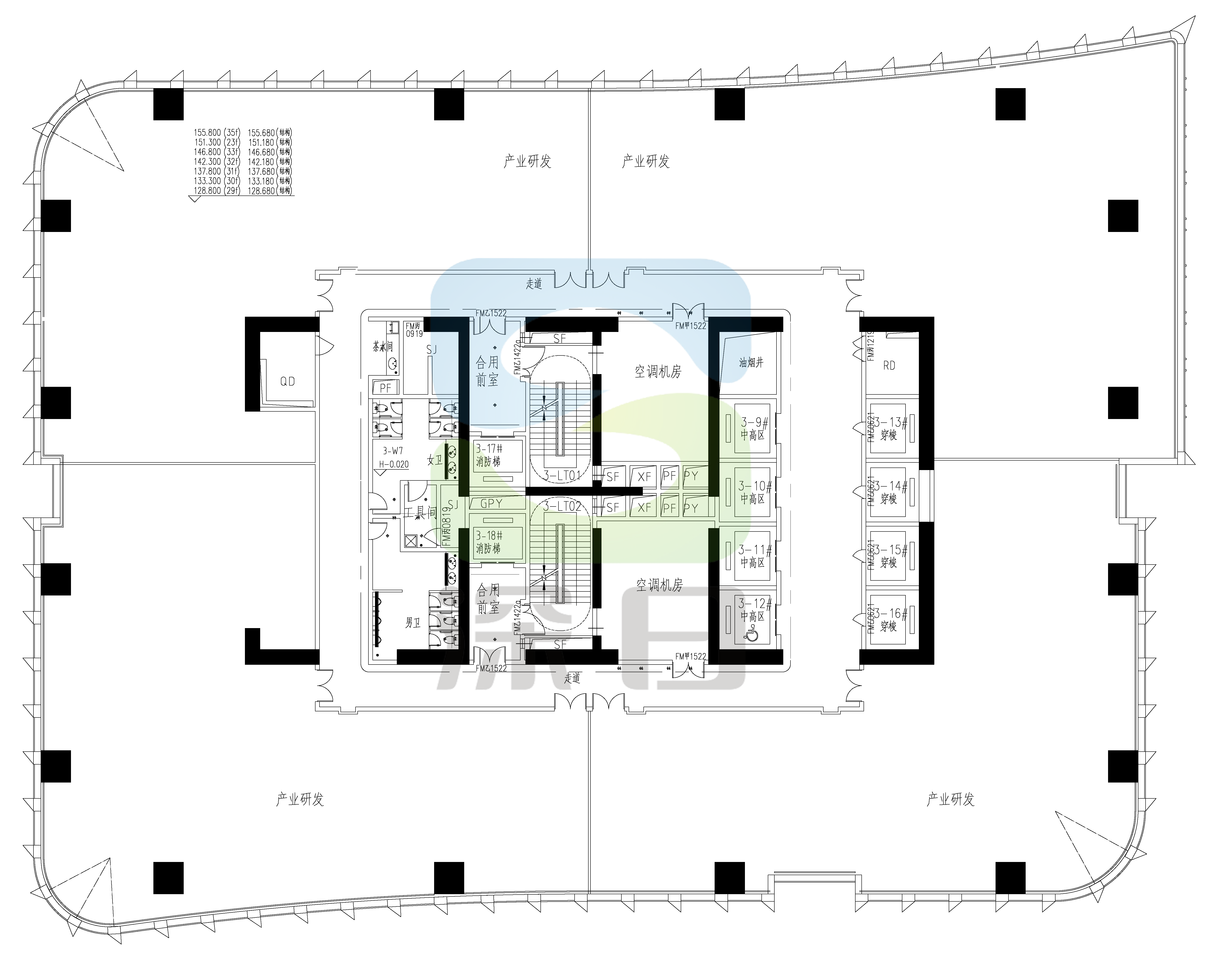
▲大家一起来看看该项目户型图,完美的户型设计,为塔尖人群高效的工作及企业而服务。作为深圳高品质的甲级写字楼,办公环境本应安静舒适,却因电梯机房及电梯井的主承重墙体与室内墙体为同一公共墙体结构深受噪声影响。本次深日电梯降噪技术的应用就是为了解决这个问题。欲了解详情(欢迎访问深日公司原创专栏《我的业绩 我的风采》)
接下来,请大家跟随我们电梯降噪工程师的脚步,一起来探访电梯降噪施工现场——
▲2025年6月,一群专业可爱的深日人,带着安静使命,踏上高铁旅途,顺利抵达深圳,开启了降噪之旅!
|
|
▲本次电梯降噪产品通过大货车也陆续运达了深圳,产品已经送达项目现场。深日团队共同协作,正在有条不紊地接收降噪产品。
|
|
▲深日团队到达深圳项目现场,正在进行施工前的工作会议,深日以电梯降噪为己任,始终坚持专业、专注、专一。
|
|
|
|
▲现场实拍,深日人正在电梯降噪施工中,每一台电梯的降噪施工都需要团队紧密地分工配合,齐心协力, 一起把电梯噪音彻底解决,齐心守护业主们的安静生活。
▲一寸一匠心,让家更安静。项目已于2025年8月完成安静交付,降噪效果非常[敏感词],为每一位为了降噪梦想付出努力的深日人点赞!
相邻设计也没电梯噪声干扰
让建筑布局可以更加的自由
让户型设计可以有更多选择
电梯噪声防治分析诊断
建议选择深日专家服务
“安静的家,才是幸福的家”,为了城市的安静梦想,为了这个许下多年的承诺,我们一直坚持,我们一路奔走。当看到我们的努力已经慢慢的引起行业的关注,大部分研发的降噪静音产品开始得到应用时,我们总是感到由衷地开心。
消除电梯噪声,救赎本应属于人们的安静生活。让我们一起加油!(欢迎访问深日公司原创专栏《我的业绩 我的风采》)。
专栏介绍
《我的业绩 我的风采》
“我始终相信,用我的一生坚持做一件事,这件事能感动别人,也能感动自己!”公司从创立的[敏感词]天起,就确立了专注电梯噪声防治技术,坚持一辈子做好一件事情的观念。因为专注,所以专业——所有深日人用二十年的执着、专注、坚持筑就了今天的“电梯先生”品牌。“电梯降噪音,找电梯先生”的口号也慢慢为行业所推崇。
近年来,中国房地产百强企业中,深日公司服务过的地产品牌已超过80%;全国范围内,除西藏和青海外,深日已在所有的省会城市及地区建立了电梯降噪治理成功案例。
为了让更多客户了解我们的电梯降噪专业服务技术,我们于2019年8月开设了深日原创专栏《我的业绩 我的风采》,该专栏主要展示深日在全国各地区服务的典型项目案例,以及我们在电梯降噪领域中所取得的各类成果。


